Pronájem bytu 1 + 1, 33 m2, Vodní ulice, Kroměříž
Vodní, Kroměříž, Kroměříž Mapa
8 500 CZK
+ 500,- Kč (voda + el.en.společných prostor). El.en. přepis na nájemníka
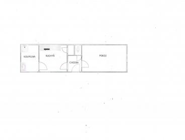
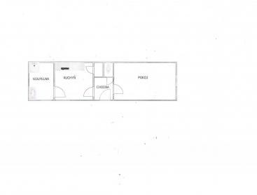
Nabízíme k pronájmu byt v historickém domě na ulici Vodní v Kroměříži. Byt prošel kompletní rekonstrukcí - rozvody, podlahy, plastová okna, dveře, kuchyňská linka (sklokeramická varná deska, elektrická trouba, odsavač par), koupelna. V obytném pokoji parkety. Byt se nachází ve 2. nadzemním pdlaží, orientace na jihovýchodní stranu do zahrady. Součástí pronajímaného bytu je sklep + společná zahrádka za domem. Kuchyň - 8,60 m2, pokoj - 13,90 m2, kouoelna - 5,60 m2, předsíň - 2,60 m2, WC - 1,00 m2, spíž 0,9 m2
  • Číslo zakázky:N00156
  • Dispozice1+1
  • Číslo podlaží v domě2
  • Počet nadzemních podlaží objektu3
  • Celková plocha32 m²
  • Druh objektuCihlová
  • Stav objektuDobrý
  • VlastnictvíOsobní
  • Druh bytuV nájemním domě (činžovním)
  • Typ nemovitostiByty
  • Charakter okolní zástavbyObchodní a obytná
  • K nastěhování15. 9. 2025
  • Užitná plocha32 m²
  • SklepAno
  • Umístění objektuCentrum obce
  • Energetická náročnost budovyE